
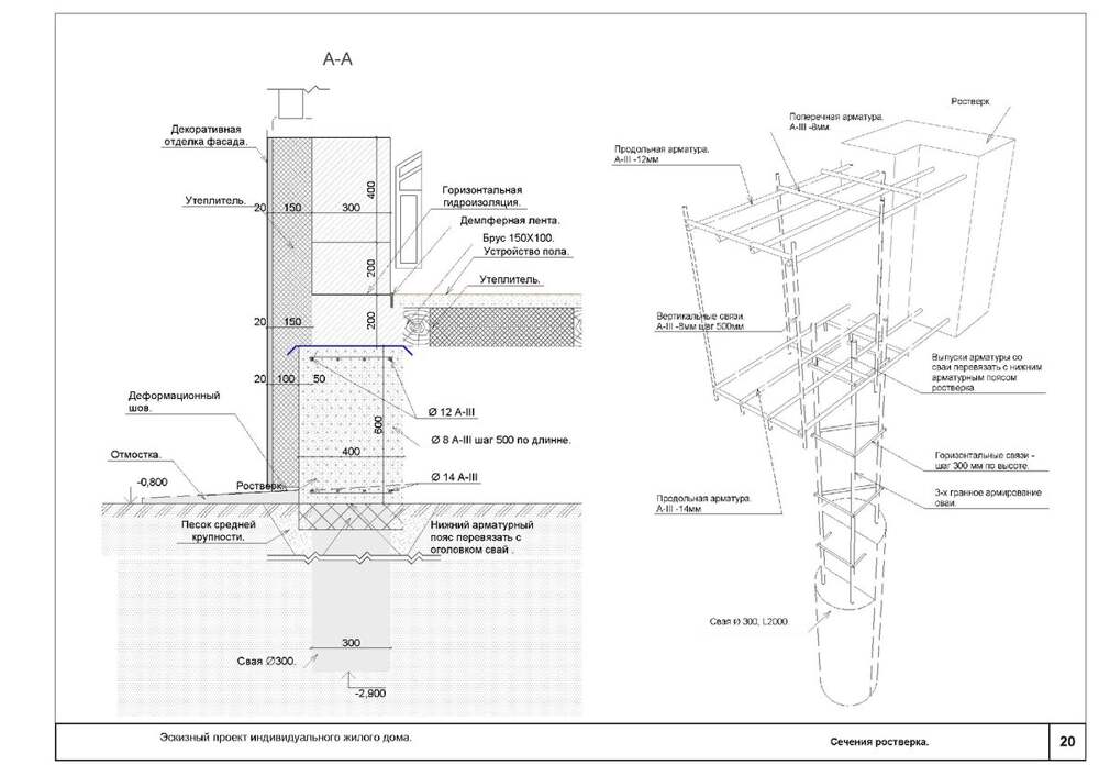
Строительство дома в стиле хай-тек: этап возведения монолитного ростверка
Что такое ростверк и зачем он нуженВ основе моего будущего дома лежит буронабивной фундамент с монолитным ростверком. Ростверк — это верхняя часть свайного фундамента, которая играет роль распределительной плиты. Он равномерно передаёт нагрузку от стен и перекрытий на сваи, обеспечивая устойчивость... Далее